โกดังเก็บสินค้า - LCB1W0012
นิคมอุตสาหกรรมแหลมฉบัง

อสังหาริมทรัพย์ - ภาพรวม
|
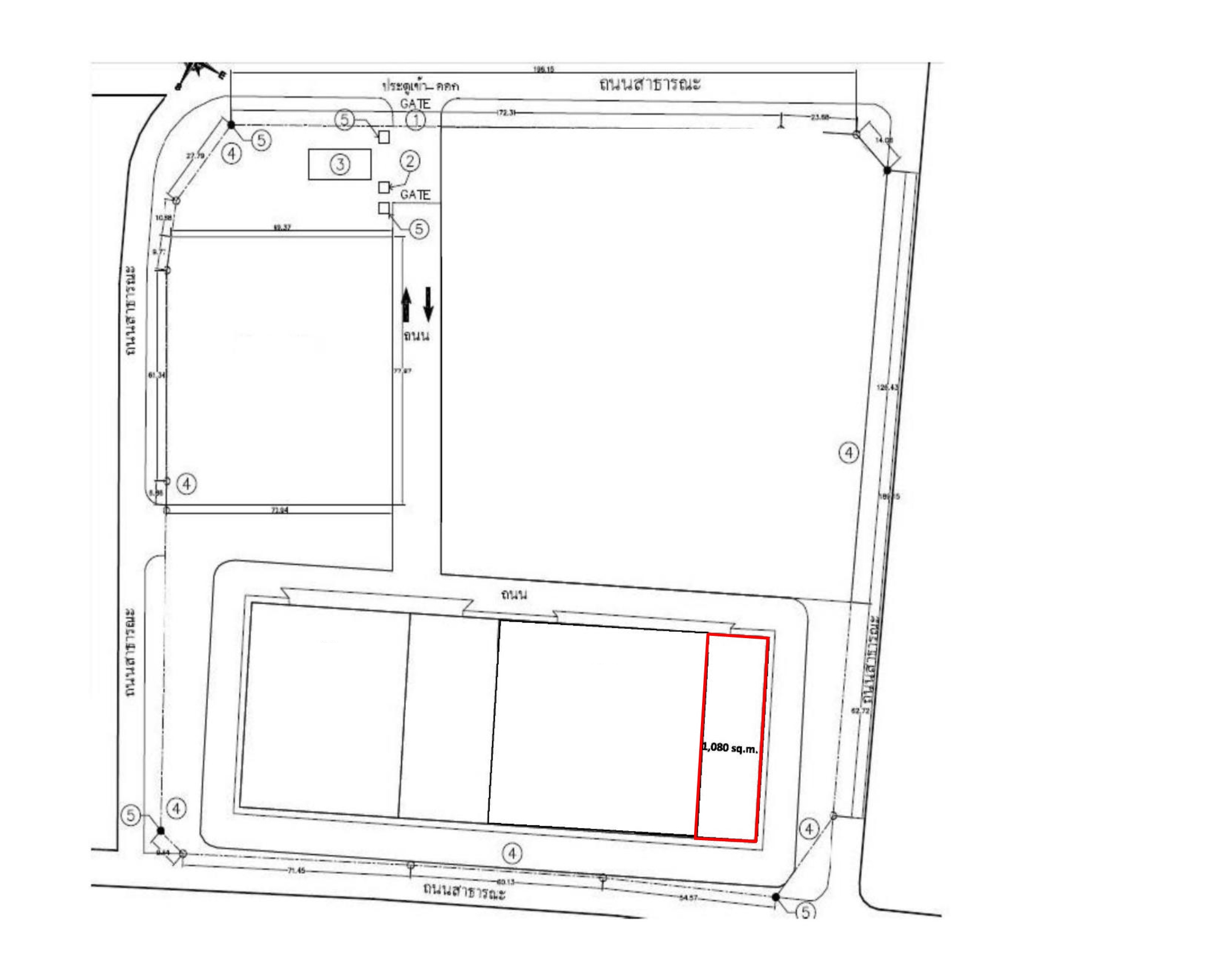
พื้นที่อาคารโดยรวม
1,080 ㎡พื้นที่โกดัง : 1,080 ㎡
ประเภทอาคาร : อาคารแถว ประเภทเขตพื้นที่ เขตประกอบการเสรี (ฟรีโซน)
|
ค่าเช่า
216,000 บาท / เดือนราคาต่อตารางเมตร : 200 บาท / ㎡ / เดือน • อาจมีค่าใช้จ่ายเพิ่มเติมในแต่ละเดือนนอกเหนือจากค่าเช่า ดูข้อมูลเพิ่มเติมด้านล่างหรือสอบถามก่อนตัดสินใจ
The service charge will be increased at 10% every 3 years.
(Exclusive of VAT)
วันที่สามารถเข้าใช้ได้ เข้าใช้ได้ตอนนี้
|
• รายละเอียดเกี่ยวกับค่าใช้จ่ายและเงื่อนไขเพิ่มเติม ดูข้อมูลด้านล่าง
• ข้อมูล ราคา และเงื่อนไขใดๆ ของอสังหาริมทรัพย์นี้ ได้รับมาจากการแจ้ง และสงวนสิทธิ์ในการเปลี่ยนแปลงใดๆ โดยไม่ต้องแจ้งให้ทราบล่วงหน้า โดยเจ้าของอสังหาริมทรัพย์, ทางเว็บไซต์ของเราไม่สามารถการันตีความถูกต้องของข้อมูลจากการเปลี่ยนแปลงดังกล่าว ดังนั้นผู้ซื้อหรือผู้เช่า จะต้องตรวจสอบความถูกต้องของ ข้อมูล ราคา และ เงื่อนไข กับทางเจ้าของอสังหาริมทรัพย์อีกครั้ง ก่อนที่จะตัดสินใจทำข้อตกลงหรือสัญญาใดๆ
• ข้อมูล ราคา และเงื่อนไขใดๆ ของอสังหาริมทรัพย์นี้ ได้รับมาจากการแจ้ง และสงวนสิทธิ์ในการเปลี่ยนแปลงใดๆ โดยไม่ต้องแจ้งให้ทราบล่วงหน้า โดยเจ้าของอสังหาริมทรัพย์, ทางเว็บไซต์ของเราไม่สามารถการันตีความถูกต้องของข้อมูลจากการเปลี่ยนแปลงดังกล่าว ดังนั้นผู้ซื้อหรือผู้เช่า จะต้องตรวจสอบความถูกต้องของ ข้อมูล ราคา และ เงื่อนไข กับทางเจ้าของอสังหาริมทรัพย์อีกครั้ง ก่อนที่จะตัดสินใจทำข้อตกลงหรือสัญญาใดๆ
มือสอง |
เปลี่ยนเลย์เอาต์ได้ |
เข้าถึงได้ง่าย |
แก้ไขล่าสุด || 29 เม.ย. 2569
สถานที่
จังหวัด
ชลบุรี
ประเภทผังเมือง
สีม่วง (อุตสาหกรรม, โรงงานและโกดัง)
เงื่อนไขการเช่า
ภาษี & ค่าธรรมเนียม
ภาษีโรงเรือน : ไม่รวม (ผู้เช่าจ่าย)
ภาษีหัก ณ ที่จ่าย (5% / เดือน) : ไม่รวม (ผู้เช่าจ่าย)
ภาษีหัก ณ ที่จ่าย (5% / เดือน) : ไม่รวม (ผู้เช่าจ่าย)
• ในกรณีการเช่า นอกเหนือจากค่าเช่าปกติ ผู้เช่าจะต้องชำระภาษีโรงเรือนเพิ่มอีก
ระยะเวลาทำสัญญาขั้นต่ำ
3 ปี
ค่ามัดจำสัญญา
3 เดือน
จ่ายชำระล่วงหน้า
1 เดือน
ระบบโครงสร้างพื้นฐาน
การรับน้ำหนักของพื้น
รองรับมากที่สุด : 3 ตัน / ตร.ม.ความสูงจากพื้นถึงโครงสร้างหลังคา
ความสูงมากที่สุด : 8 เมตรไฟฟ้า
มีเฉพาะระบบไฟฟ้าปกติและไฟฟ้าแสงสว่าง ไม่มีระบบไฟฟ้า / หม้อแปลง / แผงควบคุม สำหรับการใช้งานในโรงงาน, ต้องติดตั้งเองหากต้องการการตกแต่งภายในอาคาร
ไม่มี (ต้องก่อสร้างเพิ่ม)ระบบโทรศัพท์
ไม่มีระบบสาย ตู้สาขา เครื่องโทรศัพท์, ต้องติดตั้งเองหากต้องการระบบอินเตอร์เน็ต
ไม่มี ต้องติดต่อผู้ให้บริการ และติดตั้งเองหากต้องการระบบเครื่องปรับอากาศ
โรงงาน : ไม่มี (ต้องติดตั้งเอง ถ้าต้องการ)สิ่งอำนวยความสะดวก
การป้องกันไฟไหม้
มีที่จอดรถ
● มีที่จอด 14 คัน ภายในที่ดินของโรงงาน● มีพื้นที่สำหรับจอดได้ประมาณ คัน ภายในที่ดินของโรงงาน

















