工場・倉庫 - YMT1F0024

|
物件 - 概要
|
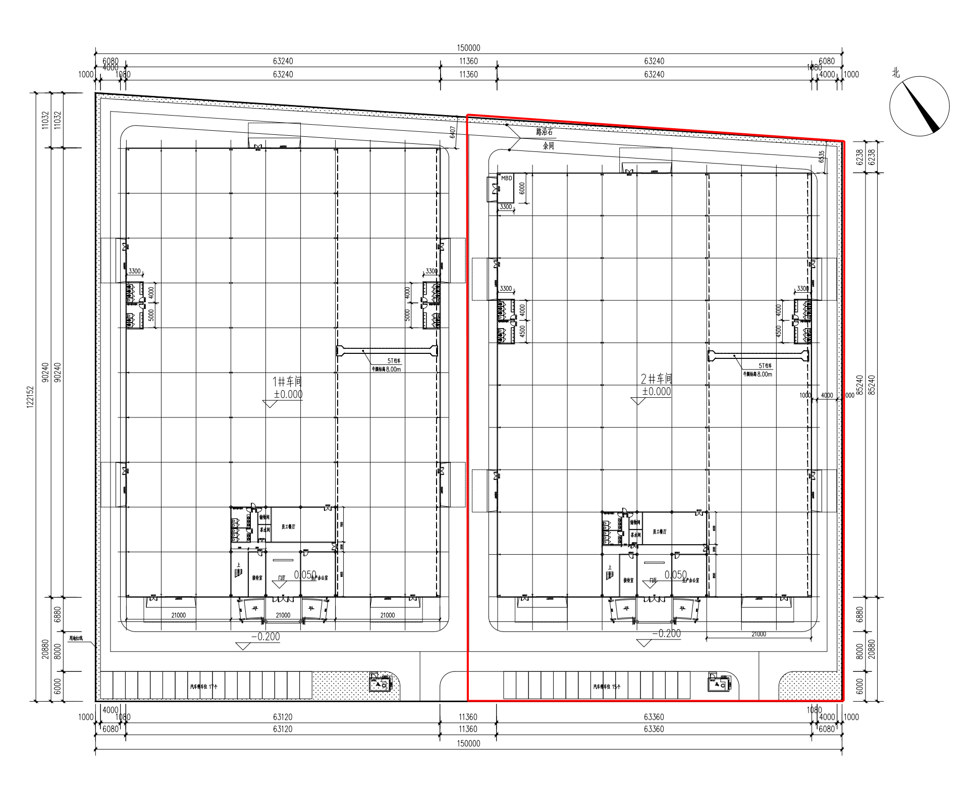
建屋面積合計
11,760 ㎡ (3,564 坪)工場・倉庫面積 : 11,025 ㎡ 事務所面積 : 735 ㎡ 建屋の形式 : 戸建て 2 Unit
工業用地サイズ
10.97275 ライ (17,556.4 ㎡ | 5,320 坪)おおよそのサイズ ゾーン区分 ゼネラル・ゾーン(一般加工区)
|
家賃
2,352,000 バーツ / 月(約1108万円 / 月) 、(約72,912 USD / 月) 平米単価 : 200 バーツ / ㎡ / 月 (約942円 / ㎡ / 月) 、(約6 USD / ㎡ / 月) ※ 現在の賃貸価格に諸税等が別途係る場合があります。下記のその他費用の項目の掲載欄をご確認されるか、個別にお尋ね下さい。
価格
350,000,000 バーツ(約16億4850万円) 、(約10,850,000 USD) ※ 合計金額(税金や仲介手数料等を含む金額) :
約361,235,000 バーツ 入居・購入可能日 2026年3月
|
※ 1 バーツ (Baht)=約4.71円、1円=約0.212バーツ 、
1 バーツ (Baht)=約0.031 USD, 1 USD=約32.18 バーツ
( バンコク銀行レート:2025年10月29日現在 ) ※ 上記記載の販売価格以外に、諸税等や、手数料などは下記に記載がありますので、ご確認下さい。
※ 掲載の物件の売買・賃貸の条件は大家(オーナー)からの情報を元に正確を期して作成をしております。 但し、当運営サイトでは、その情報の正確性、完全性を保証するものではありません。大家(オーナー)の判断により今後予告なしに変更される事があります。 購入者、賃貸者は必ず購入、賃借の前に大家(オーナー)に条件をご確認下さい。また、購入、賃貸に際してはご自身の判断でなされる様お願い申し上げます。弊社は、それらに関しての一切の責任を負いません。
( バンコク銀行レート:2025年10月29日現在 ) ※ 上記記載の販売価格以外に、諸税等や、手数料などは下記に記載がありますので、ご確認下さい。
※ 掲載の物件の売買・賃貸の条件は大家(オーナー)からの情報を元に正確を期して作成をしております。 但し、当運営サイトでは、その情報の正確性、完全性を保証するものではありません。大家(オーナー)の判断により今後予告なしに変更される事があります。 購入者、賃貸者は必ず購入、賃借の前に大家(オーナー)に条件をご確認下さい。また、購入、賃貸に際してはご自身の判断でなされる様お願い申し上げます。弊社は、それらに関しての一切の責任を負いません。
新築物件 |
アクセス良 |
入居検討企業多数 |
最終更新日 || 2026年1月16日
ロケーション
県
チョンブリ
ゾーン区分
工業地域(紫)
工業団地管理費
工業用地
ゼネラル・ゾーン : 1,400 バーツ / ライ / 月
賃貸基本条件
税金に関しての支払い項目
物件利用税(プロパティTax) : 含まれず (賃借人払い)
源泉徴収税(ウィズホールディングTax) (5% / 月) : 含まれず (賃借人払い)
源泉徴収税(ウィズホールディングTax) (5% / 月) : 含まれず (賃借人払い)
※ 管理費用とは別に、通常レンタル工場の場合、賃料に対して不動産利用税が掛かります。
最低契約期間
3 年間
敷金(デポジット)
3 ヶ月
前家賃
1 ヶ月
内装工事・設備工事における条件
内装工事・設備工事の際の保証金 : 必要
販売基本条件
税金に関しての支払い項目
所有権移転登記税(トランスファーフィー) (2%) : 売主払い
特別事業税(スペシャル・ビジネスTax) (3.3%) : 売主払い
源泉徴収税(ウィズホールディングTax) (1%) : 売主払い
特別事業税(スペシャル・ビジネスTax) (3.3%) : 売主払い
源泉徴収税(ウィズホールディングTax) (1%) : 売主払い
契約条件
1.Signing contract 30%
2.Transfer within 45 days for 70% (After sign contract)
2.Transfer within 45 days for 70% (After sign contract)
インフラ設備
耐加重
耐加重 工場の主要エリア : 3 t / 平米天井高(天頂部高さ)
梁下高 : 11.5 m.電気
なし(工場、オフィス部分の照明配線のみ。工場内配線、変圧器、配電盤などなし。必要な場合は自社にて設置工事。)水道供給
なし(生活用水のみ。工場設備としての給水設備は無いので、必要な場合は自社にて配管工事・ポンプ設置が必要。)物件の内装工事・設備工事の現状
なし(必要な場合は自社にて設置工事)電話設備 回線設定
なし(電話線ジャック、電話交換機、電話機なし。必要な場合は自社にて設置工事。)インターネット配線・サーバ等システム
なし(必要な場合はプロバイダーに連絡し、設置工事。)エアコン・システム
工場 : なし(必要な場合は自社にて設置)事務所 : なし(必要な場合は自社にて設置)
施設・設備
セキュリティ
● 共有での警備体制 (セキュリティ・ゲート)● 警備員監視所(ガードハウス)

































