โกดังเก็บสินค้า - WHL3W0002
WHA Mega Logistics Center Wangnoi 62

อสังหาริมทรัพย์ - ภาพรวม
|
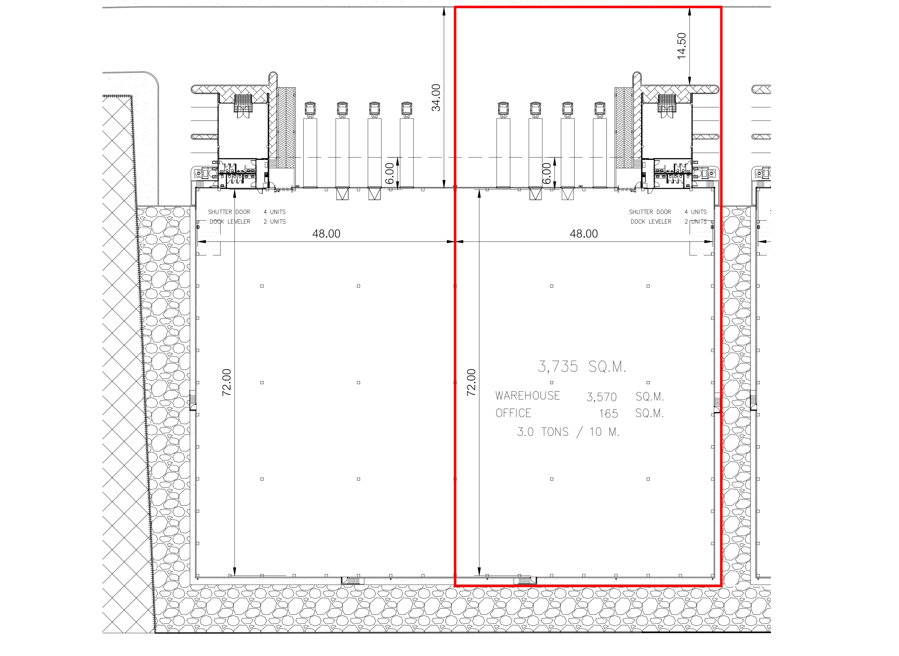
พื้นที่อาคารโดยรวม
3,735 ㎡พื้นที่โกดัง : 3,570 ㎡
พื้นที่ออฟฟิศ : 165 ㎡ ขนาดอาคาร : 48X72 m. ประเภทอาคาร : อาคารแฝด ประเภทเขตพื้นที่ เขตอุตสาหกรรมทั่วไป
|
ค่าเช่า
560,250 บาท / เดือนราคาต่อตารางเมตร : 150 บาท / ㎡ / เดือน • อาจมีค่าใช้จ่ายเพิ่มเติมในแต่ละเดือนนอกเหนือจากค่าเช่า ดูข้อมูลเพิ่มเติมด้านล่างหรือสอบถามก่อนตัดสินใจ
อัตราการปรับเพิ่ม 10% ทุก ๆ 3 ปี
วันที่สามารถเข้าใช้ได้ เข้าใช้ได้ตอนนี้
|
• รายละเอียดเกี่ยวกับค่าใช้จ่ายและเงื่อนไขเพิ่มเติม ดูข้อมูลด้านล่าง
• ข้อมูล ราคา และเงื่อนไขใดๆ ของอสังหาริมทรัพย์นี้ ได้รับมาจากการแจ้ง และสงวนสิทธิ์ในการเปลี่ยนแปลงใดๆ โดยไม่ต้องแจ้งให้ทราบล่วงหน้า โดยเจ้าของอสังหาริมทรัพย์, ทางเว็บไซต์ของเราไม่สามารถการันตีความถูกต้องของข้อมูลจากการเปลี่ยนแปลงดังกล่าว ดังนั้นผู้ซื้อหรือผู้เช่า จะต้องตรวจสอบความถูกต้องของ ข้อมูล ราคา และ เงื่อนไข กับทางเจ้าของอสังหาริมทรัพย์อีกครั้ง ก่อนที่จะตัดสินใจทำข้อตกลงหรือสัญญาใดๆ
• ข้อมูล ราคา และเงื่อนไขใดๆ ของอสังหาริมทรัพย์นี้ ได้รับมาจากการแจ้ง และสงวนสิทธิ์ในการเปลี่ยนแปลงใดๆ โดยไม่ต้องแจ้งให้ทราบล่วงหน้า โดยเจ้าของอสังหาริมทรัพย์, ทางเว็บไซต์ของเราไม่สามารถการันตีความถูกต้องของข้อมูลจากการเปลี่ยนแปลงดังกล่าว ดังนั้นผู้ซื้อหรือผู้เช่า จะต้องตรวจสอบความถูกต้องของ ข้อมูล ราคา และ เงื่อนไข กับทางเจ้าของอสังหาริมทรัพย์อีกครั้ง ก่อนที่จะตัดสินใจทำข้อตกลงหรือสัญญาใดๆ
มือสอง |
เข้าถึงได้ง่าย |
ได้รับความสนใจมาก |
แก้ไขล่าสุด || 23 มี.ค. 2569
สถานที่
จังหวัด
อยุธยา
ประเภทผังเมือง
สีเขียว (ชนบทและเกษตรกรรม)
ค่าส่วนกลาง
โรงงาน / โกดัง
เขตอุตสาหกรรมทั่วไป : รวมในค่าเช่าแล้ว
เงื่อนไขการเช่า
ภาษี & ค่าธรรมเนียม
ภาษีโรงเรือน : ไม่รวม (ผู้เช่าจ่าย)
ภาษีหัก ณ ที่จ่าย (5% / เดือน) : ไม่รวม (ผู้เช่าจ่าย)
ภาษีหัก ณ ที่จ่าย (5% / เดือน) : ไม่รวม (ผู้เช่าจ่าย)
• ในกรณีการเช่า นอกเหนือจากค่าเช่าปกติ ผู้เช่าจะต้องชำระภาษีโรงเรือนเพิ่มอีก
ระยะเวลาทำสัญญาขั้นต่ำ
3 ปี
ค่ามัดจำสัญญา
3 เดือน
จ่ายชำระล่วงหน้า
1 เดือน
เงื่อนไขการตกแต่งภายใน
ค่ามัดจำประกันการตกแต่งอาคาร : ต้องการ
การทำประกันภัย
included
ระบบโครงสร้างพื้นฐาน
การรับน้ำหนักของพื้น
รองรับมากที่สุด : 3 ตัน / ตร.ม.ความสูงจากพื้นถึงโครงสร้างหลังคา
ความสูงน้อยที่สุด : 10 เมตรไฟฟ้า
มีเฉพาะระบบไฟฟ้าปกติและไฟฟ้าแสงสว่าง ไม่มีระบบไฟฟ้า / หม้อแปลง / แผงควบคุม สำหรับการใช้งานในโรงงาน, ต้องติดตั้งเองหากต้องการหม้อแปลงไฟฟ้าขนาด 160 MVA
(มีการเรียกเก็บค่าธรรมเนียมเพิ่ม 10% หากไม่มีการโอนชื่อผู้ถือมิเตอร์)
ประปา
มีเฉพาะระบบประปาปกติ ไม่มีสำหรับรองรับการใช้งานสำหรับอุปกรณ์โรงงาน, ต้องติดตั้งท่อและปั๊มเองหากต้องการคิดค่าธรรมเนียม 10% หากไม่โอนชื่อผู้ถือมิเตอร์
การตกแต่งภายในอาคาร
ไม่มี (ต้องก่อสร้างเพิ่ม)ระบบโทรศัพท์
ไม่มีระบบสาย ตู้สาขา เครื่องโทรศัพท์, ต้องติดตั้งเองหากต้องการระบบอินเตอร์เน็ต
ไม่มี ต้องติดต่อผู้ให้บริการ และติดตั้งเองหากต้องการระบบเครื่องปรับอากาศ
โรงงาน : ไม่มี (ต้องติดตั้งเอง ถ้าต้องการ)ออฟฟิศ : ไม่มี (ต้องติดตั้งเอง ถ้าต้องการ)
สิ่งอำนวยความสะดวก
การรักษาความปลอดภัย
● รปภ. ส่วนกลาง● ป้อม รปภ.
การป้องกันไฟไหม้
● ถังดับเพลิง / ท่อดับเพลิง● สัญญาณเตือนไฟไหม้
ที่จอดรถ
● มีที่จอด 5 คัน ภายในที่ดินของโรงงานประตูชัตเตอร์
● อัตโนมัติประตูม้วนเหล็ก (รวมประตูที่บริเวณทางลาด) จำนวน 5 ชุด
แท่นปรับระดับสำหรับท่าขนถ่ายสินค้า จำนวน 2 ชุด






























